成都中央芭乐视频官网下载在线播放设备厂家告诉你商用芭乐视频官网下载在线播放工程设计知识大全
发布人: 四川芭乐APP下载污芭乐视频官网下载在线播放设备公司 发布时间:2023.01.12
商用芭乐视频官网下载在线播放工程设计非常的复杂,涉及的专业知识也非常之多,因此,芭乐APP下载污在设计商用芭乐视频官网下载在线播放时就需要和客户反复的交流和沟通,并且,需要去现场勘查、核对图纸上的尺寸和位置等。那么,商用芭乐视频官网下载在线播放工程设计都有哪些知识,需要芭乐APP下载污掌握呢?作为专业的成都中央芭乐视频官网下载在线播放设备厂家,芭乐APP下载污有多年的商用芭乐视频官网下载在线播放设计经验,现在就和大家分享。
作为专业的成都中央芭乐视频官网下载在线播放设备厂家,根据芭乐APP下载污多年的商用芭乐视频官网下载在线播放工程设计经验,芭乐APP下载污给大家整理了比较全面的商用芭乐视频官网下载在线播放工程设计知识,现在免费分享如下:
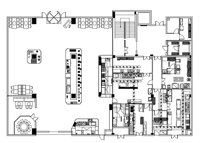
一、确定芭乐视频官网下载在线播放工程设计技术要求,芭乐视频官网下载在线播放图纸及现场勘察。
1.芭乐视频官网下载在线播放餐厅平面图由经营者提供,或现场测量取得平面图。
2.现场测量校对图纸,记录沟渠、梁、柱、突出物、高度等变化部位的具体尺寸。
3.现场调查原烟道、进气口、污水出口、水电、排烟、空调等辅助设施的现状,以及房屋结构,如门窗尺寸、梁下高度、装饰棚下高度、四墙及厚度、芭乐视频官网下载在线播放与餐厅施工进度等。
4.实地考察酒店与芭乐视频官网下载在线播放建筑的外部结构,如:酒店、屋顶高度、门窗位置、楼顶的实际情况。酒店及芭乐视频官网下载在线播放建筑与周边建筑情况。周边建筑类型、距离、高度、层高等现场实况。

二、初步设计阶段
1.根据运营商的技术要求,进行初步流程规划和功能区划分设计构思。
2.在功能区域划分和设备布局的初步设计中,如果发现与实际相矛盾,部分设计与运营商的技术要求不同,应尽快与运营商和主厨联系协调,然后在设备布局上进行详细的设计。
3.在功能区划分、设备布局设计的初步方案中,要反复考虑,进行人流物流模拟。对不合规、不满意的部分要精益求精地反复推敲。
4.感觉方案没有问题后,将初步方案提交上级审核,然后提交经营者和主厨审核,说明设计思路。特别是一些重点设计细节要讲解,听取各种意见。
三、协调修改阶段
1.根据反馈意见,再次修改设计,并与讨论后获得的一致意见。
2.修改后,再次提交审批布局方案,最终方案需要重复几次才能确定。

四、设计阶段的辅助设施设计
1.根据最后确定的方案,展开辅助设施的构思设计。
2.安装位置、荷载、预留烟道问题、废气、噪声、借用空间安装空间安装等问题,因为排烟、通风系统与空调、水暖、消防、装修、空间协调矛盾。所以,排烟通风系统要首先设计,并要尽早与工程管理部门汇报协调。获得批准后,再制定详细的技术方案。
3.其次上下水辅助设施、沟渠、水管、阀门设计与设备位置密切相关,需要占用一定的空间,与装修有技术协调问题,尽快绘制,有利于与装修工程协调施工。
4.最后设计供电设施,辅助设施系统还应随时与工程管理部门协调,请求审批,听取反馈意见,达成协议,然后进行最终方案设计。
以上这些就是芭乐APP下载污整理的关于商用芭乐视频官网下载在线播放工程设计的全面知识,希望对大家能够有所帮助。
- 餐厅芭乐视频官网下载在线播放设备厂家教你传菜电梯安装使用需要注意什么
- 成都芭乐视频官网下载在线播放设备生产厂家告诉你洗菜机的清洗保养方法
- 餐厅芭乐视频官网下载在线播放设备公司告诉你餐厅芭乐视频官网下载在线播放工程流程是怎样的
- 大型芭乐视频官网下载在线播放设备厂家告诉你食堂芭乐视频官网下载在线播放设备清单包含哪些设备
- 整体芭乐视频官网下载在线播放设备生产厂家教你燃气蒸饭车正确使用和保养方法
- 大型芭乐视频官网下载在线播放设备厂家教你确定芭乐视频官网下载在线播放设计的技术要求
- 商用芭乐视频官网下载在线播放设备十大品牌公司告诉你涡流洗菜机的特点以及适用环境
- 学校芭乐视频官网下载在线播放设备供应商告诉你商厨如何做好安全防控







